| 価格 | 6,198万円 ![]() |
||||
|---|---|---|---|---|---|
| 所在地 | 千葉県松戸市緑ケ丘2丁目
この地域周辺の物件を見る |
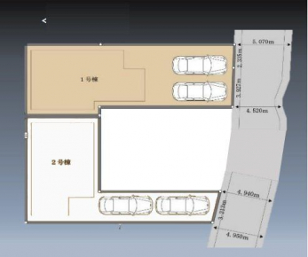
土地面積 | 122.25m² (36.98坪) | 建物面積 | 104.29u |
| 築年月 | 新築 2026年築 | 間取り | 3LDK (LDK21.5/洋室9.8/洋室9.1/洋室5) | ||
| 交通 |
新京成電鉄 上本郷/徒歩3分
JR常磐線 松戸/徒歩23分 |
||||
電話をかける(携帯・PHS可)
043-309-7350
「ホームページを見て」とお伝え下さい。
お問い合わせ番号をお伝えください
RHS-B00119-067520
| 特徴 |
|
|---|---|
| セールスコメント | 現地案内会開催中‥365日ご案内いつでも大歓迎!! 京成松戸線「上本郷」駅徒歩3分 JR常磐線「松戸」駅徒歩23分 カースペース2台分あり ■松ケ丘小学校まで徒歩3分とお子様の通学安心 ■リビング全体を見渡せるカウンターキッチン ■LDK広々21.5帖!家族みんなでのんびり寛げますね ■家事の時短に繋がる食洗機 ■食材の保管などに便利なフリースペース ■収納たっぷりウォークインクローゼット設置!お部屋がすっきり片付きます ■全居室収納有り ●お客様の笑顔のために。・* 千葉県の不動産のことなら株式会社アフィオにお任せください!● お客様の一生の宝物になるお家探しの、心強いパートナーになれるよう全力でサポート致します! ご見学やご相談には迅速にご対応致します! お気軽にお問合せ下さいませ! |
| 採光面 | 東南 | 構造/階数 | 木造/地上2階建 |
|---|---|---|---|
| 建ぺい率 | 60(%) | 容積率 | 200(%) |
| 駐車場 | 有 | 現況/引渡し | -/2026年5月中旬 |
| 土地権利 | 所有権 | 私道負担面積 | - |
| 接道状況 | 接道: 東 公道 道路幅: 4.5m | 用途地域 | 第一種中高層住居専用地域
|
| セットバック | - | 法令上の制限 | - |
| 地目 | 宅地 | 地勢 | |
| 建築確認番号 | 第25UDI1W建05953号 | 都市計画 | 市街化区域 |
| 小学校区 | () |
中学校区 | () |
| 取引態様 | 仲介 | ||
電話をかける(携帯・PHS可)
043-309-7350
「ホームページを見て」とお伝え下さい。
お問い合わせ番号をお伝えください
RHS-B00119-067520
| 年利率 | % |
||
|---|---|---|---|
| ボーナス払い | 返済年数 | ||
| 頭金 | 直接入力する | 万円 | |

毎月のご返済額 |
ボーナス(×年2回) |
物件価格6,198万円 |
![]() |
![]() |
松戸市緑ケ丘2丁目
5298万円〜6198万円 |
電話でお問い合わせ
株式会社アフィオ千葉店
|
電話をかける 043-309-7350 ※「ホームページを見て」とお伝えください。 |
お問い合わせ番号をお伝えください RHS-B00119-067520 |
|---|
TEL.043-309-7350
〒264-0036
千葉市若葉区殿台町392-1
9:00~18:30
定休日:水曜日
メインメニュー
物件特集2
※ピタットハウスの加盟店は独立自営であり、各店舗の責任のもと運営をしております。
現地案内会開催中‥365日ご案内いつでも大歓迎!!
LDK21帖以上/全居室収納/ウォークインクローゼット/リビングイン階段/フリースペース/カースペース2台