船橋市芝山5丁目 新築戸建 千葉県船橋市芝山5丁目|4,580万円の新築一戸建て|分譲住宅や新築物件|株式会社アフィオ

株式会社アフィオ
ピタットハウス接客コンテスト首都圏大会売買部門金賞・銅賞
土地戸建建築注文
トータルにプロデュース
043-309-7350
TOPページ >
物件検索 >
新築一戸建て
>
船橋市
>
東葉高速鉄道
>
船橋市芝山5丁目 新築戸建

新築一戸建て

船橋市芝山5丁目 新築戸建 お気に入り
価格 4,580万円 ローンシミュレーション
所在地 千葉県船橋市芝山5丁目
この地域周辺の物件を見る
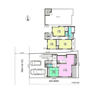
土地面積 109.06m² (32.99坪) 建物面積 92.47u
築年月 新築 2026年築 間取り 4LDK (LDK16.8/和室4.8/洋室6/洋室5.5/洋室4.3)
交通
東葉高速鉄道 飯山満/徒歩12分
新京成電鉄 高根公団/徒歩19分
ここがおすすめ

現地案内会開催中‥365日ご案内いつでも大歓迎!!
小学校徒歩7分/周辺環境充実/開放感溢れる広々バルコニー/寛ぎの和室/カースペース並列2台可


  • 周辺環境 栄光幼稚園 徒歩8分。 580m
  • 間取り図(販1戸建) 4LDK
  • 周辺環境 船橋市立 芝山東小学校 徒歩7分。 560m
  • 周辺環境 船橋市立芝山中学校 徒歩12分。 950m
  • 周辺環境 セブンイレブン船橋新高根6丁目店 徒歩6分。 430m
  • 周辺環境 マミーマート飯山満駅前店 徒歩10分。 741m
  • 周辺環境 ウエルシア船橋新高根店 徒歩8分。 590m
  • 周辺環境 藤田クリニック 徒歩11分。 840m
  • 周辺環境 千葉徳洲会病院 徒歩21分。 1680m
  • 周辺環境 船橋芝山郵便局 徒歩10分。 800m
お問い合わせ、資料請求、見学のお申し込みはこちらから

電話をかける(携帯・PHS可)
043-309-7350
「ホームページを見て」とお伝え下さい。

お問い合わせ番号をお伝えください
RHS-B00119-066533

内見予約・お問い合わせ

セールスポイント

特徴
  • フローリング
  • 給湯器
  • システムキッチン
  • カウンターキッチン
  • シャンプードレッサー
  • 追い焚き
  • シャワートイレ
  • 室内洗濯機置場
  • 浴室乾燥機
  • コンロ三口
  • バルコニー
  • TVドアホン
  • 都市ガス
  • カースペース2台以上
セールスコメント 現地案内会開催中‥365日ご案内いつでも大歓迎!!

小学校徒歩7分とお子様の通学安心
周辺環境充実!お買い物ラクラク
東葉高速鉄道「飯山満」駅徒歩12分

■家族とお話ししながら楽しく料理できるカウンターキッチン
■小さなお子様のいるご家庭に嬉しい寛ぎの和室
■開放感溢れる広々バルコニー
■カースペース並列2台可(車種による)

・豊富な物件数で、ご希望のお家探しが楽々できます。
・売却のご相談も秘密厳守でスピーディーに対応。
‥株式会社アフィオで今すぐ検索‥

●お客様の笑顔のために。・* 
千葉県の不動産のことなら株式会社アフィオにお任せください!● 
お客様の一生の宝物になるお家探しの、心強いパートナーになれるよう全力でサポート致します!
ご見学やご相談には迅速にご対応致します!
お気軽にお問合せ下さいませ!


物件概要

採光面 構造/階数 木造/地上2階建
建ぺい率 50(%) 容積率 100(%)
駐車場 現況/引渡し -/相談
土地権利 所有権 私道負担面積 -

接道状況 接道: 西 私道 道路幅: 4m 用途地域
第一種低層住居専用地域
セットバック - 法令上の制限 -
地目 - 地勢
建築確認番号 第25UDI1C建05141号 都市計画 市街化区域
小学校区
()
中学校区
()
取引態様 仲介
※各種情報と差異がある場合は現況優先となります
※物件情報の学区情報について
当サイト物件情報に記載されております通学区域(学区)情報は、国土数値情報ダウンロードサービスが提供する小学校区データ【2016年度】及び中学校区データ【2016年度】を元に加工したものですので、記載情報が現在の学区域と異なる場合がございます。
国土数値情報ダウンロードサービスのWEBサイト上で記述通り、データは必ずしも正確とは言えません。また、通学区域(学区)は毎年見直しの対象となりますので、そちらを踏まえ学区情報は参考としてご活用下さい。
  • 現地販売会
  • 住み替えをご検討中の方へ
お問い合わせ、資料請求、見学のお申し込みはこちらから

電話をかける(携帯・PHS可)
043-309-7350
「ホームページを見て」とお伝え下さい。

お問い合わせ番号をお伝えください
RHS-B00119-066533

内見予約・お問い合わせ

この物件でローンシミュレーションする

年利率
ボーナス払い 返済年数
頭金 直接入力する 万円

毎月のご返済額

ボーナス(×年2回)

物件価格

4,580万円
※返済金額はあくまでも目安です。

電話でお問い合わせ
株式会社アフィオ千葉店

電話をかける

043-309-7350

※「ホームページを見て」とお伝えください。
お問い合わせ番号をお伝えください
RHS-B00119-066533

お問い合わせ

お問い合わせ内容
お問合せ内容必須
【備考欄】
詳細な見学ご希望時間、ご質問、ご希望条件などがございましたらお聞かせ下さい。
(2000文字以内)
お客様情報
お名前必須
連絡先必須 メールアドレス

※ご記入いただいたメールアドレス宛てに、お問合せ内容の確認メールをお送りいたします。
※Yahoo!メールなどのフリーメールをご利用の場合、迷惑メールフォルダに入る場合があります。
 迷惑メールのフォルダ・設定等をご確認下さい。
電話番号
FAX(任意)

お気軽にお問い合わせください

043-309-7350
物件番号 RHS-B00119-066533
※「ホームページを見た」
とお伝え下さい。
税金のことについて
WEBチラシ
スタッフブログ
お客様の声

会社概要

千葉店

〒264-0036

千葉市若葉区殿台町392-1

TEL:043-309-7350

FAX:043-309-6966

千葉南店

〒292-0009

千葉県木更津市金田東6-18-10

TEL:0438-38-6150

FAX:0438-38-6157

株式会社アフィオ

TEL.043-309-7350
〒264-0036
千葉市若葉区殿台町392-1
9:00~18:30
定休日:水曜日

※ピタットハウスの加盟店は独立自営であり、各店舗の責任のもと運営をしております。

千葉県全域の不動産